Marktwert erfahren
← Zurück zur Übersicht
Wohnung · Kauf Verkauft

Warum länger warten... die Zinsen steigen

📍 Halle

90.000 €
4
Zimmer
87 m²
Wohnfläche

Objektbeschreibung

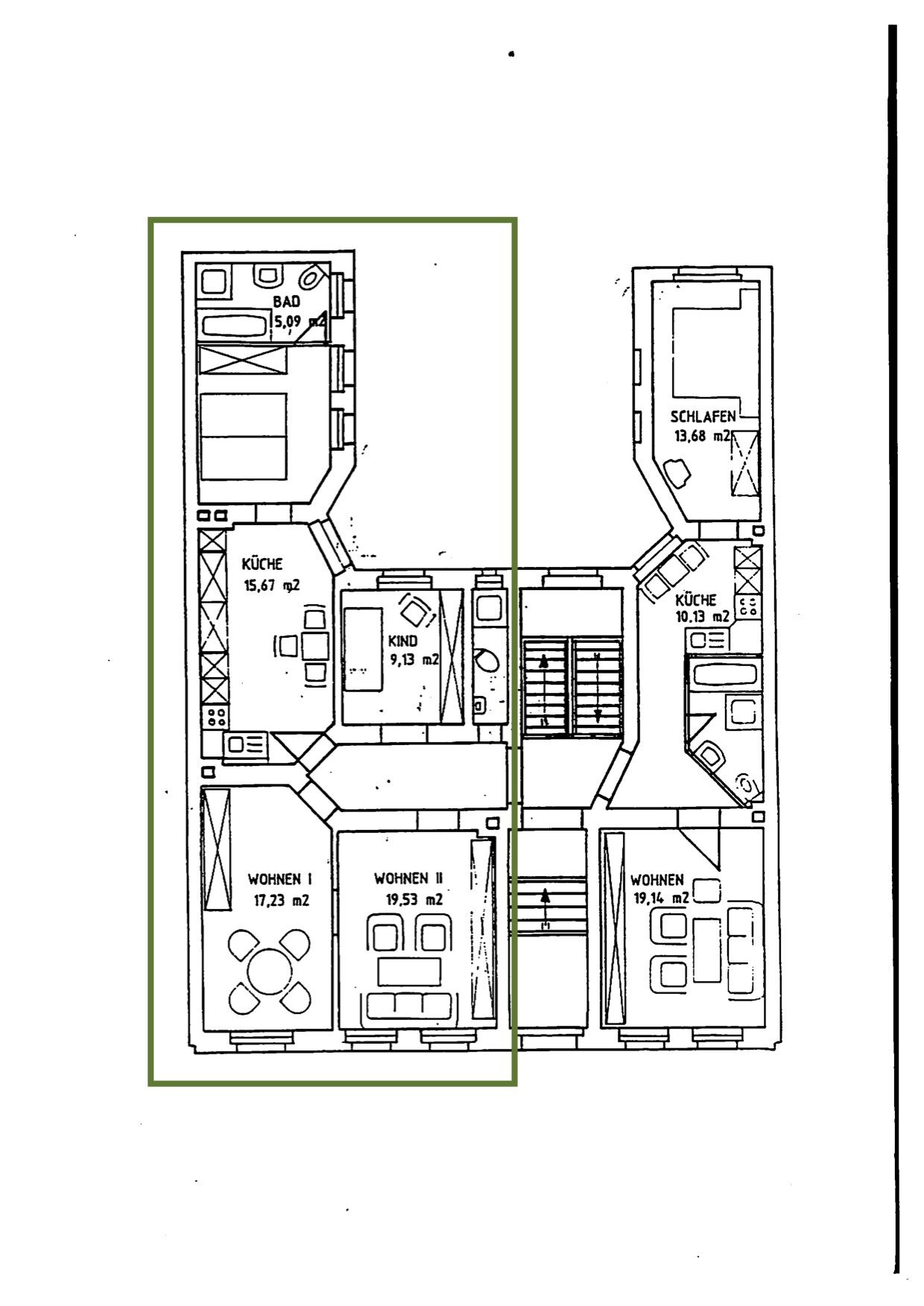
Diese Eigentumswohnung befindet sich in der Hochparterre eine 1996 umfangreich sanierten Wohnhauses in der südlichen Innenstadt. Die Wohnung verfügt über 4 Zimmer, Bad und Gäste-WC. Der Innenhof wird von Allen gemeinsam genutzt.

Die Wohnung steht leer und kann sofort genutzt werden.

Lage

Die Südliche Innenstadt ist ein traditionelles Wohnquartier. Es schließt sich im Norden unmittelbar an die historische Altstadt an und erstreckt sich in südlicher Richtung bis zu den Kleingartenanlagen am Johannesplatz und an der Warneckstraße bzw. bis zum Südfriedhof. In Ost-West-Richtung reicht es vom Gelände der DB AG im Osten bis zum Landschaftsraum der Saale im Westen. Der größte Teil der Gebäude stammt aus der Gründerzeit und bildet mehrgeschossige geschlossene Blockrandstrukturen (ehemalige Vorstadt Glaucha, große Teile der südlichen Stadterweiterung). Charakteristisch ist die hohe Dichte und weitgehende Überbauung der Grundstücke mit Vorder-, Seiten- und Hinterhäusern. Vereinzelt finden sich historisch bedingt gewerbliche Nutzungen in den Innenhöfen.

Ausstattung

- Bad mit Fenster
- große Wohnküche mit Fenstern
- Laminat
- Gäste-WC

Sonstiges

WIR BITTEN UM BEACHTUNG, dass wir vollständige Objektdaten erst herausgeben und Besichtigungen nur dann vereinbaren können, wenn Sie uns ebenfalls Ihre vollständige Adresse und Telefonnummer übermittelt haben. Alle aktiven Objekte finden Sie auf unserer Homepage http://www.wohntraum.info.

Sollten Sie hier nicht fündig werden und weiterhin an aktuellen Angeboten interessiert sein, nehmen Sie sich bitte die Zeit und senden uns per eMail Ihre detailierten Wünsche zu. Sie können dazu auch gern das Suchformular auf unserer Homepage verwenden. Ihr Vorteil besteht darin, dass wir die uns neu angebotenen Objekte noch bevor wir sie veröffentlichen, zunächst erst einmal Ihnen vorstellen können. Wir garantieren Ihnen das Ihre Daten nur für den Zweck bestimmt sind, mit Ihnen zu kommunizieren um Ihnen bei der Erfüllung Ihres Wohntraum`s behilflich sein zu können. Selbstverständlich stehen wir Ihnen auch gern persönlich zur Verfügung.

Es gelten unsere allgemeinen Geschäftsbedingungen.

Objektdaten im Überblick

ObjekttypWohnung
Zimmer4
Badezimmer1
Wohnfläche87 m²
Etagen ges.4
Baujahr1900
ZustandWELL_KEPT
Objektnr.718

Grundrisse

Wohntraum Immobilien S.Batat
Grundriss Wittstr.

Lage & Umgebung

Ihr Ansprechpartner

W
Wohntraum Immobilien GmbH
Immobilienmakler & Sachverständiger
📞 Jetzt anrufen ✉️ E-Mail senden 💬 WhatsApp

Anfrage senden

Mit dem Absenden stimmen Sie unserer Datenschutzerklärung zu.

Warum Wohntraum?

✓ 30+ Jahre Erfahrung
✓ Kostenlose Erstberatung
✓ Geprüfte Marktpreisanalyse
✓ Ihr Makler vor Ort
✓ Sachverständiger & Mediator